Solution
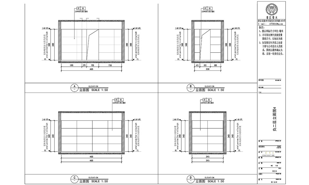
阁楼
楼顶全屋,榻榻米,门,柜子等等
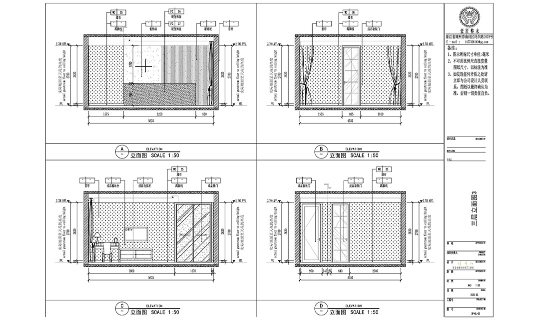
主层
各种衣柜,储物柜,更衣室,阳台整木定制等等
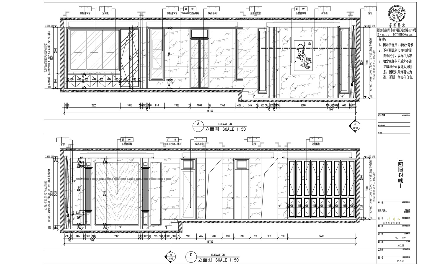
一层
厨房全屋定制,客厅全屋定制,个性屏风,豪华鞋柜,豪华入户大门等等
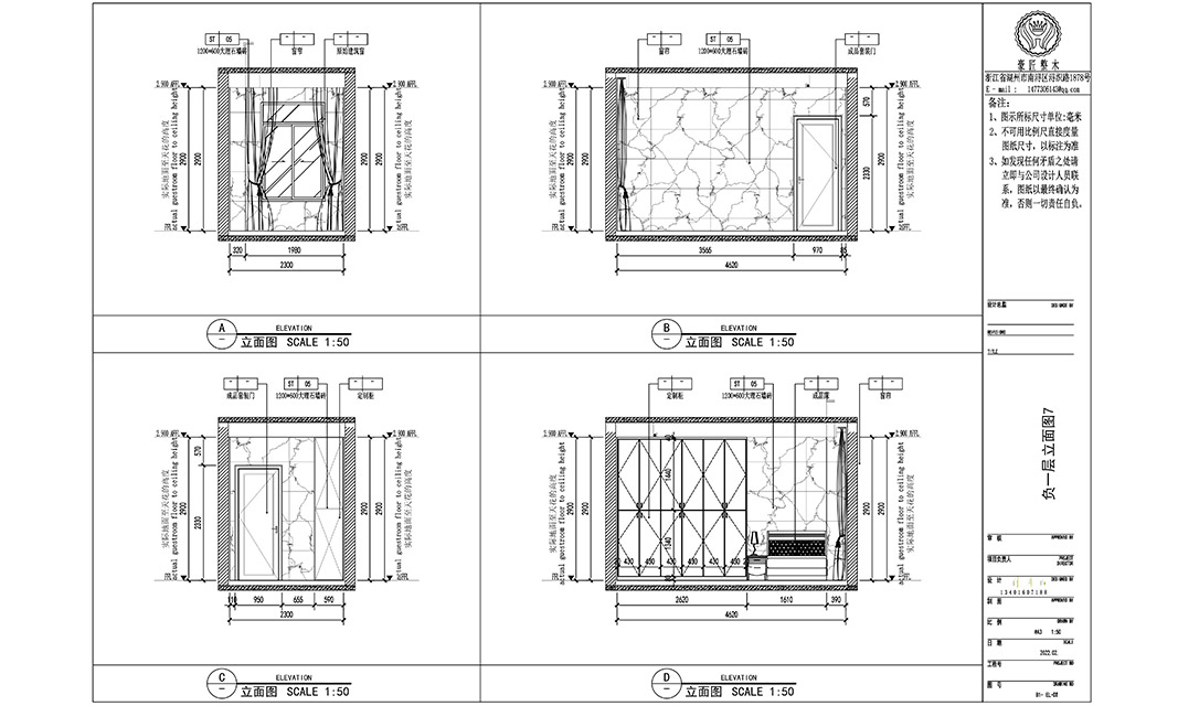
地下室
酒柜,防潮地板,更衣间
其他:
豪华实木楼梯(包括扶手),私家花园防腐木产品定制,

让生活的美好与爱意自在生长为设计主旨,把设计交还他们的生活。设计中的“奢”不止来源于材质奢华,更是洞察生活的本质,为居住者呈现了一处现代奢居的理想范本,将品质感和高级感深入每一个细节。在设计中融入了细腻、优雅的艺术风格,搭配精致时尚的主题色调,以充满诗意的氛围感,呈现了一处现代奢居的理想范本,将品质感和高级感深入每一个细节,传递出优雅浪漫的生活美学。

阁楼
楼顶全屋,榻榻米,门,柜子等等
主层
各种衣柜,储物柜,更衣室,阳台整木定制等等
一层
厨房全屋定制,客厅全屋定制,个性屏风,豪华鞋柜,豪华入户大门等等
地下室
酒柜,防潮地板,更衣间
其他:
豪华实木楼梯(包括扶手),私家花园防腐木产品定制,

1-预算师傅上门测量
2-根据业主选用的木材(行情波动比较大)
3-业主其他要求一并考虑,综合做出准确预算